Fire integrity ≥ 30 minutes, fire insulation ≥ 30 minutes;
Suitable for secondary fire protection areas such as pipe shafts and cable shafts, mainly used to block the spread of small fires.
0102030405
Steel Glass Fire Rated Door
Product Features

Fire Resistance Performance
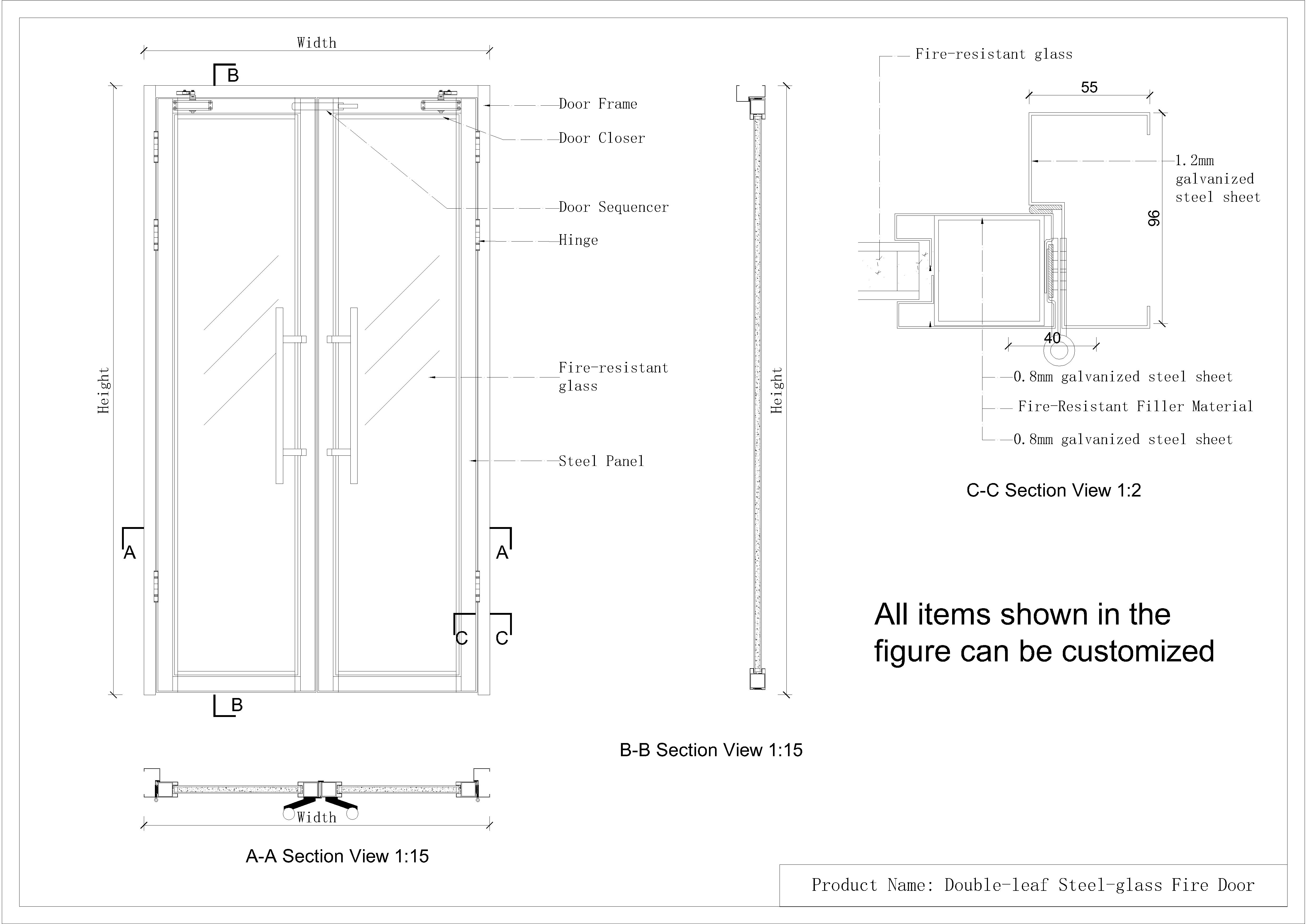
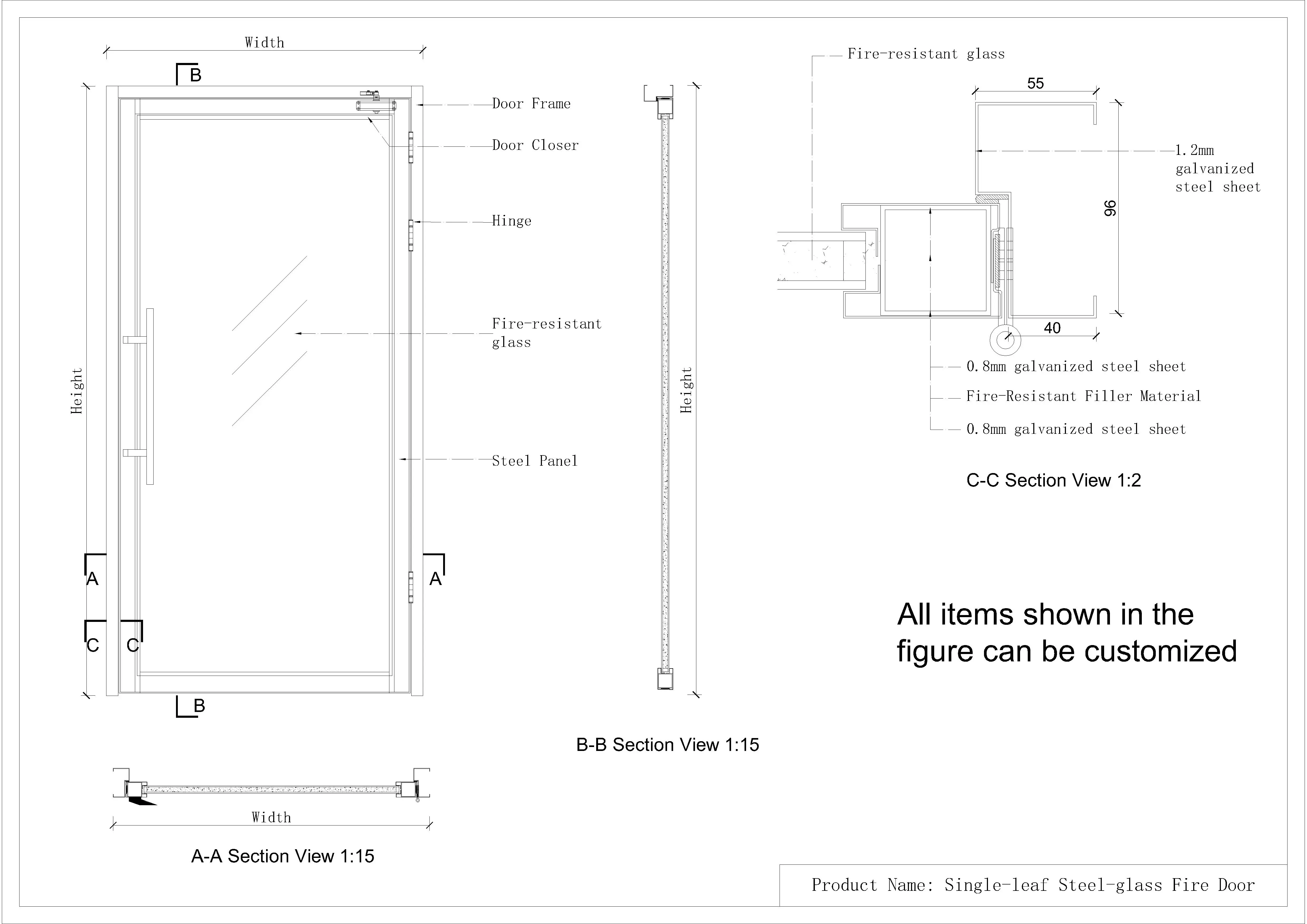
The core of steel glass fire rated doors relies on fire rated glass, which forms a heat-insulating glaze layer at high temperatures to block flame penetration. The steel frame enhances structural stability, and when combined with fire-resistant sealing strips, the doors achieve a balance between light transmission and fire protection.
Smoke Sealing
The door gap is precisely controlled within 1–3 mm and paired with a door closer to ensure the door remains closed. The fire-sealing strip stays flexible at normal temperatures and expands under heat to tightly seal gaps, effectively preventing the spread of toxic smoke.
Durability & Strength
Both the door frame and door leaf are made of high-quality galvanized steel sheets and fire-resistant glass, featuring excellent corrosion resistance and good light transmission. The door frame is processed through welding forming or an interlocking formed structure, enabling the steel glass fire rated door to withstand daily collisions.
Aesthetic Appearance
It supports electrostatic powder coating (colors can be selected from the RAL color chart) and wood grain heat transfer printing (simulating oak, walnut wood textures, etc.). The surface coating is free of pinholes and bubbles, and the glass has excellent light transmission performance. These features enable our steel glass fire-resistant doors to adapt to diverse styles such as modern and minimalist, integrating both lighting function and design appeal.
Installation & Maintenance
The frame is fixed with expansion bolts, and the gap between the frame and wall is filled with cement mortar for stability. Routine maintenance is simple—regularly check the hardware for flexibility, clean the sealing strips, and replace any damaged components individually—ensuring a longer service life for the steel fire-rated door.
Fire Rating

Grade C

Grade B
Fire integrity ≥ 60 minutes, fire insulation ≥ 60 minutes;
Suitable for areas with moderate fire protection requirements such as stairwells, antechambers, and evacuation routes.
Suitable for areas with moderate fire protection requirements such as stairwells, antechambers, and evacuation routes.

Grade A
Fire integrity ≥ 90 minutes, fire insulation ≥ 90 minutes;
Suitable for important areas such as fire control rooms, power distribution rooms, rooms with valuable equipment, and fan rooms.
Suitable for important areas such as fire control rooms, power distribution rooms, rooms with valuable equipment, and fan rooms.

Others
Fire integrity ≥ 120-180 minutes, fire insulation ≥ 120-180 minutes;
Suitable for areas with ultra-Class A fire protection requirements such as chemical workshops, tunnel escape exits, and arms and ammunition depots
Suitable for areas with ultra-Class A fire protection requirements such as chemical workshops, tunnel escape exits, and arms and ammunition depots
Application Areas

Industrial Facilities

Public Institutions (Hospitals / Schools)

Commercial Buildings (Offices / Hotels / Residences)

Transportation Hubs (Airports / Rail Stations)

Military and Security Facilities
| Door Frame | 1.2mm Galvanized Steel Plate |
| Interlocking Formed Structure | |
| Door Leaf | 0.8mm Galvanized Steel Plate |
| Fire-Resistant Glass:Nano-Silicon Fire Rated Glass | |
| Thickness of Door Leaf: 50mm | |
| Colors | Electrostatic Powder Coating
|
Wood Grain Heat Transfer Printing
| |
| Opening Method | ![]() |
| Accessory Configuration | Hinge |
| Pull handle | |
| Door Closers |
All parameters are customized
















